Если отопление вашего автомобиля не функционирует должным образом, первым делом нужно обратить внимание на один из компонентов системы. Когда обогреватель не включается, это может указывать на необходимость осмотра защитного устройства на предмет повреждений. Для осмотра устройства стоит воспользоваться мультиметром, настроенным на режим проверки целостности цепи. Он поможет определить, есть ли обрыв в электрической цепи.
Если устройство вышло из строя, замена не займет много времени. Вам понадобится подходящий по параметрам новый элемент. Убедитесь, что его характеристики соответствуют требованиям вашего автомобиля. Между установкой нового агрегата и проверкой системы стоит подождать несколько минут, чтобы убедиться в отсутствии сбоев.
Перед началом работы не забудьте отключить аккумулятор, чтобы избежать короткого замыкания. Используйте подходящие инструменты для демонтажа старого устройства, и обязательно следите за тем, чтобы не повредить окружающие элементы. После установки нового элемента проверьте работоспособность системы обогрева, чтобы гарантировать, что все функционирует корректно.
- Вот переработанные строки с устранением повторов слов:
- Как определить, что сгорел предохранитель печки?
- Где расположен предохранитель отопления?
- Как правильно проверить его мультиметром?
- Как визуально осмотреть на целостность?
- Какие типы подходят для Ваз 2107?
- Как снять и установить предохранитель печки?
- Как избежать его перегорания?
- Что делать, если новый предохранитель быстро сгорает?
- Как правильно подключить проводку к отопителю Ваз 2107?
- Где приобрести предохранитель для Ваз 2107?
Вот переработанные строки с устранением повторов слов:
При отсутствии тепла в салоне, первым делом необходимо осмотреть силовой компонент, отвечающий за функционирование системы отопления. Выбор высококачественного элемента повышает надежность работы. Для начала убедитесь, что в цепи нет обрывов и контакты надежно закреплены.
Если система не запускается, проверьте рабочие параметры устройства. Короткое замыкание может вызвать выход из строя нужного элемента. Замена изделия производится с учетом характеристик, соответствующих оригиналу, чтобы избежать последующих неисправностей.
Используйте стандартные инструменты для демонтажа. Отсоедините все провода перед выполнением манипуляций. Установку нового изделия осуществляйте с особой осторожностью, фиксируя детали так, чтобы они не болтались и не создавали препятствий для работы.
После завершения работ убедитесь в исправности системы. Дайте машине поработать некоторое время и проверьте, идет ли тепло. Если возникли проблемы, стоит обратиться к специалистам для поиска более серьезных неисправностей системы.
Как определить, что сгорел предохранитель печки?
Визуальный осмотр тоже поможет. Откройте доступ к электрической панели и проверьте целостность устройства. При наличии обгоревших или потемневших участков на корпусе можно смело говорить о необходимости замены.
Другим индикатором служит поведение электрических цепей. Если при переключении режимов слышны звуки, но обогреватель не работает, это также указывает на возможную неисправность.
Не следует забывать об искрении. Если при попытке включения наблюдаются искры или запах гари, стоит выполнять проверку немедленно.
Использование мультиметра может оказаться полезным для точной диагностики. Убедитесь, что измеряемое сопротивление соответствует норме; отклонения сигнализируют о поломке.
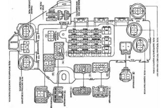
Где расположен предохранитель отопления?
Компонент, отвечающий за работу системы обогрева, находится в салоне автомобиля. Для его обнаружения следуйте инструкции:
- Откройте капот и найдите блок предохранителей, расположенный справа от рулевой колонки, под панелью приборов.
- Снимите крышку блока. На внутренней стороне крышки будет схема с указаниями всех компонентов.
- Ищите элемент, отвечающий за устройство климат-контроля. Обычно он расположен в ряду с другими защитными элементами и помечен соответствующим значком.
Если необходимо, обратитесь к руководству по эксплуатации вашего автомобиля для получения точной информации о расположении и номере компонента, связанного с обогревом. В модели 2107 он мог находиться на одном уровне с другими деталями блока.
| Наименование | Позиция |
|---|---|
| Элемент отопления | 1 (или 5) |
| Сигнализация | 2 |
| Фара | 3 |
Как правильно проверить его мультиметром?
Для определения состояния элемента при помощи мультиметра, выполните следующие действия:
- Включите прибор и установите его в режим измерения сопротивления (Ом).
- Отсоедините клеммы от элемента, чтобы избежать неправильных показаний из-за других цепей.
- Наблюдайте за показаниями на экране мультиметра. Если значение сопротивления близко к нулю, элемент исправен. При отсутствии показаний или значении в несколько Ом — элемент неисправен.
Если прибор настроен на измерение напряжения, можно проверить наличие рабочей нагрузки в цепи. Для этого:
- Включите зажигание автомобиля.
- Обратите внимание на результат. Наличие напряжения подтверждает исправность цепи, отсутствие указывает на проблему.
При обнаружении неисправности следует продолжить диагностику других элементов цепи, чтобы выявить причину. Измерение значений поможет быстрее найти неисправность и устранить ее.
Как визуально осмотреть на целостность?
Для осмотра на целостность возьмите предохранитель в руки, при этом обязательно обратите внимание на его корпус. Если он имеет трещины, потертости или видимые повреждения, это может свидетельствовать о неисправности.
Также стоит проверить стеклянную часть. При наличии полос, темных пятен или полного отсутствия прозрачности, это указывает на возможное перегорание нити. В нормальном состоянии нить должна быть целой и ровной, без каких-либо прогибов.
Обратите внимание на контакты: они должны быть чистыми и не окисленными. Наличие коррозии или цветных налетов также может указывать на проблему. В идеале, они должны блестеть и не иметь дефектов.
Если все указанные аспекты в норме, предохранитель, скорее всего, рабочий. Однако для полной уверенности рекомендовано дополнить визуальный осмотр электрическими методами проверки.
Какие типы подходят для Ваз 2107?
Для замены устройства защиты в системе нагрева автомобиля необходимо использовать компоненты с соответствующими характеристиками. Наиболее распространенные варианты включают:
| Тип | Номинал (А) | Примечания |
|---|---|---|
| Стеклянный | 16 | Стандартный для большинства моделей |
| Керамический | 20 | Устойчив к высоким температурам |
| Медный | 15 | Редко используется, но эффективен в определенных условиях |
Следует выбирать элементы, соответствующие характеристикам проводки и нагрузке на систему. Использование неподходящих изделий может привести к перегреву и повреждению электрической сети.
Как снять и установить предохранитель печки?

Для демонтажа защитного элемента, сначала отключите питание от аккумулятора. Найдите коробку с предохранителями, откройте её крышку. С помощью плоскогубцев аккуратно вытяните необходимый элемент, не повреждая соединения.
Перед установкой нового устройства убедитесь, что он соответствует необходимым характеристикам, и проверен на целостность. Установите новый элемент на место, убедившись, что он плотно сидит и заходит в контактные площадки.
После установки вновь подключите аккумулятор. Запустите двигатель и проверьте работоспособность системы обогрева. Если всё функционирует правильно, крышку коробки с предохранителями можно закрыть. В противном случае повторите шаги для уточнения возможных ошибок.
Как избежать его перегорания?
Для продления срока службы электрической защиты следует соблюдать несколько рекомендаций. Первое – контролировать состояние проводки. Изоляция проводов не должна быть повреждена, чтобы предотвратить короткое замыкание.
Второе – избегать перегрузок цепи. Если используются дополнительные электрические устройства, проверяйте, насколько они соответствуют допустимым нагрузкам. Следует подключать их через отдельные линии, чтобы не увеличивать нагрузку на общую систему.
Третье – регулярно очищать соединения от коррозии. Окисленные контакты создают дополнительное сопротивление, что может привести к повышению температуры и, как следствие, к выходу из строя защитных элементов.
Четвёртое – не игнорировать неисправности других электрических компонентов. Проблемы с генератором, аккумулятором или другими частями системы могут вызвать ненормальную работу и перегрев защитного механизма.
Пятое – устанавливать элементы, соответствующие рекомендациям производителя. Использование неподходящих по характеристикам частей может привести к их быстрому выходу из строя.
Следуя этим рекомендациям, можно существенно уменьшить риски перегорания автомобильной защиты и обеспечить стабильную работу системы обогрева.
Что делать, если новый предохранитель быстро сгорает?
Если новый элемент защиты постоянно выходит из строя, необходимо произвести детальную диагностику цепи. Решения могут включать следующие шаги:
- Проверьте проводку: Исследуйте состояние проводов на предмет повреждений, перегибов или короткого замыкания. Проблемы с изоляцией могут привести к несоответствующей нагрузке.
- Оцените нагрузку на электрическую сеть: Убедитесь, что устройства, подключенные к системе, не превышают допустимую мощность. Возможные добавления или замены компонентов могут стать причиной перегрева.
- Проверьте элементы управления: Неисправности в контроллерах или реле могут вызвать резкие скачки тока, что способствует перегоранию защитного устройства.
- Измерьте напряжение: Используйте мультиметр, чтобы определить, соответствует ли напряжение заявленным характеристикам. Избыточное напряжение способно вызвать выход из строя устройства защиты.
- Определите препятствия в системе: Проверьте соединения, разъемы и перемычки на наличие коррозии или загрязнений. Плохой контакт может стать распространенной причиной перегрева.
Если перечисленные действия не помогают, возможно, потребуется обратиться к специалисту для более глубокой диагностики системы.
Как правильно подключить проводку к отопителю Ваз 2107?
Подключение проводов к устройству обогрева требует аккуратности. Сначала отключите аккумулятор, чтобы избежать короткого замыкания и повреждений. Обратите внимание на цветовую разметку проводов: красный обычно отвечает за + (плюс), а черный – за — (минус).
При соединении проводов используйте качественные разъемы для обеспечения надежного контакта. Убедитесь, что изоляция проводов цела, нет оголенных участков, которые могут вызвать короткое замыкание.
Подсоедините красный провод к клемме питания на устройстве, а черный – к заземлению. Проверьте крепления: они должны быть жесткими и не допускать люфта. После подключения снова проверьте правильность всех соединений.
Включите питание и проверьте работу системы. Если возникают аномалии,?? проверьте подключение и целостность проводов.
Где приобрести предохранитель для Ваз 2107?
Для приобретения элемента защиты вашего автомобиля существуют несколько надежных источников:
- Автомагазины: Местные магазины автомобильных запчастей предлагают широкий выбор, включая необходимые детали для вашей модели.
- Интернет-магазины: Сайты, такие как Ozon, Wildberries или другие специализированные площадки, часто имеют в наличии искомые изделия, с возможностью доставки на дом.
- Авторазборки: В таких местах можно найти б/у элементы по сниженной цене, что поможет сэкономить бюджет.
- Сервисы и СТО: Многие сервисные центры имеют в наличии оригинальные детали, а также могут предоставить услуги по их установке.
Приобретаемые компоненты обязательно должны соответствовать спецификациям вашей модели, чтобы обеспечить правильную работу системы отопления. Рекомендуется обратить внимание на отзывы о продавцах и качество предлагаемых товаров.







